Planning Granted – Blenheim Lodge
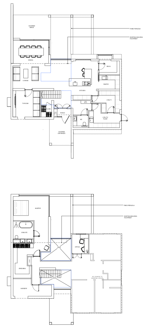
Ashford Borough Council have granted permission for a redevelopment of Blenheim Lodge in Appledore Heath. The practice extends thanks to Appledore Parish Council who examined the scheme and extended their support. The proposal includes a rear extension and re-purposing of the spaces in original dwelling on site which is an early example of a prefab timber frame home.







Leave a comment